Aménagements d'un appartement duplex basée sur une vieille bâtisse à Navarrenx

Aménagements d'un appartement duplex basée sur une vieille bâtisse à Navarrenx, Orthez, Atelier CS
09-12-2025

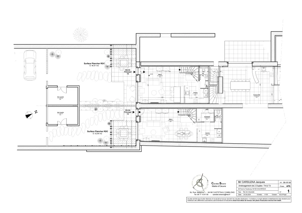
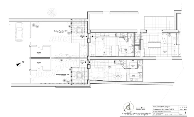
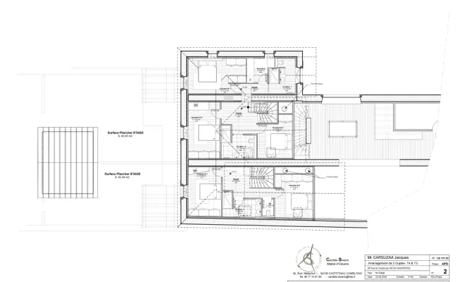
L'Atelier CS, expert en architecture d'intérieur et maîtrise d'œuvre basé à Orthez, est fier de présenter son dernier projet d'aménagement : la transformation d'un appartement duplex dans une vieille bâtisse à Navarrenx. Ce projet met en lumière notre savoir-faire unique en matière de rénovation et de création d'espaces de vie modernes tout en respectant le charme du patrimoine architectural existant.

Services d'architecture d'intérieur et de maîtrise d'œuvre

À l'Atelier CS, nous offrons une gamme complète de services pour répondre aux besoins variés de nos clients. Que vous envisagiez une rénovation, une extension ou un projet de construction neuf, notre équipe d'experts est à votre disposition pour vous accompagner à chaque étape. Nous nous occupons également du dépôt de permis de construire et du suivi des travaux, garantissant ainsi un processus fluide et sans tracas pour nos clients.

Interventions à Orthez et Pau

Bien que notre siège soit à Orthez, notre zone d'intervention s'étend également à Pau et ses environs. Que vous soyez un particulier ou un professionnel, nous mettons notre expertise à votre service pour transformer vos espaces de vie ou de travail selon vos envies et vos besoins.

Pourquoi choisir Atelier CS ?

  • Expertise : Une équipe d'architectes d'intérieur et de maîtres d'œuvre expérimentés.
  • Qualité : Des projets réalisés dans le respect des normes de sécurité et de qualité les plus strictes.
  • Engagement client : Un accompagnement personnalisé tout au long de votre projet.

Pour découvrir comment nous pouvons vous aider à concrétiser votre projet, n'hésitez pas à nous contacter pour une demande de devis. Notre équipe se fera un plaisir de vous accompagner dans la réalisation de vos rêves architecturaux.

En résumé :

  • Transformation d'un appartement duplex à Navarrenx par Atelier CS.
  • Services complets : rénovation, extension, construction, dépôt de permis de construire et suivi des travaux.
  • Zones d'intervention : Orthez et Pau.
  • Choix d'Atelier CS pour son expertise, sa qualité et son engagement client.