Création de suite parentale sur mesure à Capbreton : l'expertise Atelier CS

Création de suite parentale sur mesure à Capbreton : l'expertise Atelier CS, Orthez, Atelier CS
24-04-2025

Vous rêvez d'une suite parentale sur mesure à Capbreton, intime, confortable et adaptée à votre mode de vie ? Faites appel à Atelier CS, architecte d’intérieur et maître d’œuvre, pour créer un espace à la fois esthétique, fonctionnel et parfaitement intégré à votre maison.

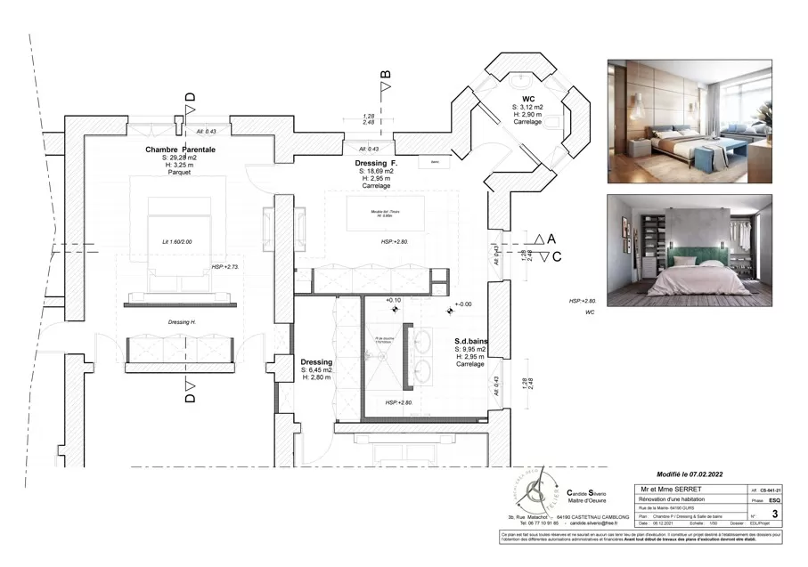
Une suite parentale : bien plus qu’une chambre La suite parentale est un espace privatif où confort, ergonomie et esthétique doivent cohabiter harmonieusement. Elle intègre généralement une chambre spacieuse, une salle d’eau privée, et souvent un dressing ou un espace de lecture. Chez Atelier CS, nous pensons chaque détail pour créer une suite sur mesure à Capbreton qui vous ressemble.

Notre accompagnement inclut :

  • La conception de l'agencement en fonction de la surface disponible

  • Le choix des matériaux et ambiances (naturel, contemporain, minimaliste...)

  • L’intégration optimale de la salle d’eau et des rangements

  • L’optimisation de la luminosité naturelle et artificielle

Une suite sur mesure pensée pour votre quotidien Chaque projet de création de suite parentale à Capbreton est personnalisé selon vos usages et envies :

  • Chambre ouverte sur terrasse ou patio pour une ambiance résolument balnéaire

  • Dressing sur mesure pour un rangement fluide et organisé

  • Douche à l'italienne ou baignoire ilot pour un espace bien-être

  • Matériaux nobles et durables pour un style raffiné et intemporel

Nous utilisons des outils de visualisation 3D pour que vous puissiez vous projeter et ajuster chaque détail avant les travaux.

Pourquoi choisir Atelier CS pour votre suite parentale à Capbreton ?

  • Pour notre double expertise en architecture d'intérieur et coordination de travaux

  • Pour notre approche sur mesure, adaptée à chaque maison et à chaque couple

  • Pour notre connaissance des styles côtiers et contemporains, typiques de Capbreton

  • Pour un suivi rigoureux, humain et transparent, de la conception à la finition

Vous souhaitez créer une suite parentale sur mesure à Capbreton ? Offrez-vous un cocon privatif pensé dans les moindres détails, avec le savoir-faire Atelier CS.

📞 Contactez-nous dès aujourd’hui pour parler de votre projet et recevoir une proposition personnalisée.

Vous souhaitant une agréable visite, si vous avez besoin d'un complément d'information concernant votre Architecte d'intérieur et maître d'œuvre à Capbreton prenez contact dès à présent.