Projet d'extension de maison pour créer un garage à Orthez

Projet d'extension de maison pour créer un garage à Orthez, Orthez, Atelier CS
16-04-2026

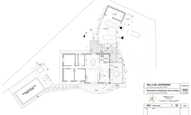
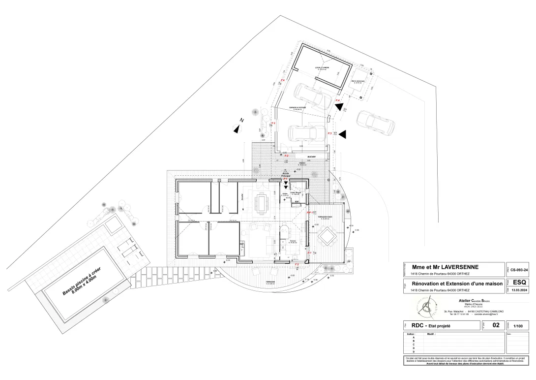
Un projet d'extension ambitieux à Orthez

Chez Atelier CS, nous sommes fiers de vous présenter notre dernier projet d'extension d'une maison située à Orthez. Ce projet consiste à créer un garage spacieux qui viendra relier la maison principale à l'abri de jardin existant. Cette extension ne se contente pas d'ajouter un espace fonctionnel, mais elle contribue également à renforcer l'architecture globale de la maison, créant ainsi une harmonie visuelle et structurelle.

Expertise en architecture d'intérieur et maîtrise d'œuvre

En tant qu'architectes d'intérieur et maîtres d'œuvre, nous mettons notre savoir-faire au service de vos projets de construction, d'extension et de rénovation. Notre équipe s'engage à respecter les normes de sécurité les plus strictes tout en garantissant une qualité de réalisation exceptionnelle. Grâce à notre expertise, nous assurons également le dépôt de permis de construire et le suivi des travaux, vous offrant ainsi une tranquillité d'esprit totale.

Zones d'intervention : Orthez et Pau

Notre entreprise est fièrement implantée à Orthez, et nous intervenons également dans la région de Pau. Que vous soyez à la recherche d'une extension, d'une rénovation ou d'une construction neuve, Atelier CS est votre partenaire de confiance pour réaliser vos projets avec succès.

Pourquoi choisir Atelier CS ?

  • Expertise reconnue en architecture d'intérieur et maîtrise d'œuvre
  • Engagement envers la qualité et le respect des budget
  • Accompagnement personnalisé et engagement client
  • Créativité que nous mettons au service de nos clients   

Pour découvrir comment nous pouvons vous aider à concrétiser votre projet d'extension ou pour toute autre demande, n'hésitez pas à nous contacter via notre demande de devis. Notre équipe se tient à votre disposition pour répondre à toutes vos questions et vous accompagner dans la réalisation de vos projets.