Réhabilitation d'une vieille grange béarnaise à Sauveterre de Béarn

Réhabilitation d'une vieille grange béarnaise à Sauveterre de Béarn, Orthez, Atelier CS
10-02-2026

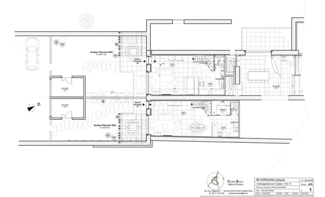
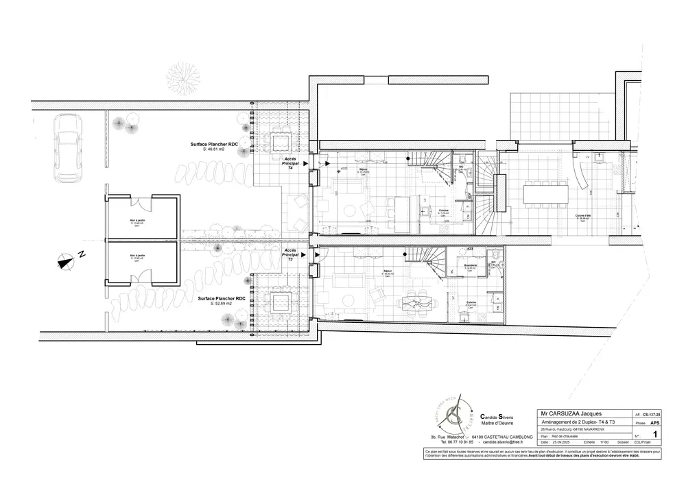
Atelier CS, votre expert en architecture d'intérieur et maîtrise d'œuvre basé à Orthez, est fier d'annoncer la réhabilitation d'une vieille grange béarnaise située sur la commune de Sauveterre de Béarn. Ce projet met en lumière notre savoir-faire en matière de rénovation et notre engagement envers la préservation du patrimoine local.

Notre expertise en architecture d'intérieur et maîtrise d'œuvre

En tant qu'architectes d'intérieur et maîtres d'œuvre, nous nous spécialisons dans la construction, l'extension, et la rénovation de bâtiments. Notre équipe expérimentée assure également le dépôt de permis de construire et le suivi des travaux, garantissant que chaque projet est réalisé selon les normes les plus strictes.

Intervention à Orthez et ses environs

Bien que notre siège soit à Orthez, nous intervenons également dans les zones environnantes, notamment à Pau. Notre connaissance approfondie de la région nous permet de proposer des solutions adaptées aux besoins spécifiques de chaque client.

Pourquoi choisir Atelier CS ?

  • Expertise en architecture d'intérieur et maîtrise d'œuvre.
  • Engagement envers la qualité et le respect des normes de sécurité.
  • Approche personnalisée et engagement client fort.

Nous vous invitons à découvrir notre approche unique et notre passion pour la rénovation en nous contactant pour une demande de devis. Notre équipe se fera un plaisir de vous accompagner dans la réalisation de votre projet.