Rénovation de deux salles de bain à Salies de Béarn

Rénovation de deux salles de bain à Salies de Béarn, Orthez, Atelier CS
25-02-2026

Atelier CS, votre expert en architecture d'intérieur et maître d'œuvre basé à Orthez, a récemment achevé avec succès un projet de rénovation de deux salles de bain à Salies de Béarn. Ce projet illustre notre savoir-faire unique, combinant esthétisme, confort et fonctionnalité, tout en respectant les normes de sécurité et d'excellence.

Expertise en architecture d'intérieur et maîtrise d'œuvre

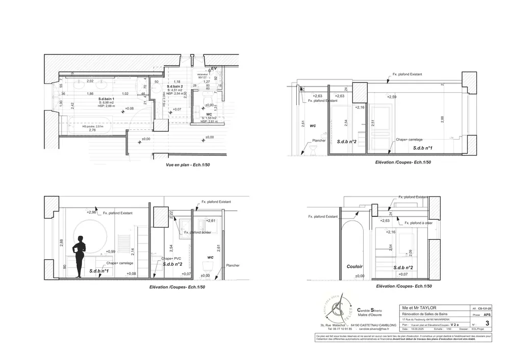
Chez Atelier CS, nous nous spécialisons dans la rénovation, l'extension et la construction d'espaces intérieurs. Notre équipe, composée de professionnels expérimentés, s'engage à transformer vos espaces de vie en des lieux de bien-être. À Navarrenx, nous avons conçu deux salles de bain distinctes, chacune avec sa propre identité, mais partageant une qualité de finition irréprochable.

Dans la première salle de bain, nous avons intégré un meuble vasque sur-mesure avec une façade effet noyer, accompagné d'un meuble de rangement élégant. Ce choix de matériaux apporte chaleur et raffinement, s'harmonisant parfaitement avec les tons naturels des murs et du sol.

La seconde salle de bain a été repensée dans un style contemporain, avec un grand plan vasque sur-mesure. L'élément phare de cette pièce est une douche à l'italienne, intégrée avec finesse, soulignant notre expertise en conception d'intérieurs.

Zones d'intervention : Orthez et ses environs

Bien que notre siège soit à Orthez, nous intervenons également à Pau et dans les environs pour tous vos projets de rénovation et d'aménagement intérieur. Notre équipe est prête à vous accompagner dans chaque étape, du dépôt de permis de construire à la supervision des travaux.

Pourquoi choisir Atelier CS ?

  • Expertise : Une équipe de professionnels qualifiés en architecture d'intérieur et maîtrise d'œuvre.
  • Qualité : Des matériaux de haute qualité et des finitions soignées.
  • Engagement client : Un accompagnement personnalisé et une écoute attentive de vos besoins.

Pour découvrir plus de nos réalisations ou discuter de votre projet, n'hésitez pas à nous contacter. Faites une demande de devis dès maintenant et laissez-vous inspirer par notre savoir-faire unique en rénovation et aménagement.