Actualités

Projet de rénovation Sud-Ouest par architecte d'intérieur : l’expertise de Atelier CS à Orthez Dans le cadre d’un projet de rénovation Sud-Ouest par architecte d'intérieur…
La réussite d’un projet de construction repose avant tout sur une coordination de travaux rigoureuse et efficace. C’est précisément ce que  Atelier CS, maître d’…
  Rénovation et décoration intérieure réussies à Navarrenx par Atelier CS, maître d’œuvre à Orthez Vous recherchez un décorateur d'intérieur à Navarrenx capable de…
Rénover un logement est un projet enthousiasmant, mais il peut rapidement devenir complexe si l’on n’est pas accompagné par des professionnels. À Orthez et ses environs, faire appel…
Dans nos intérieurs modernes, chaque centimètre compte. Que l’on vive dans un petit appartement en centre-ville ou dans une maison spacieuse à la campagne, la question du rangement reste essentielle…
Aménager ou rénover une chambre principale n’est pas qu’une question de mobilier. Les couleurs tendance pour une chambre parentale jouent un rôle central dans l’ambiance et le…
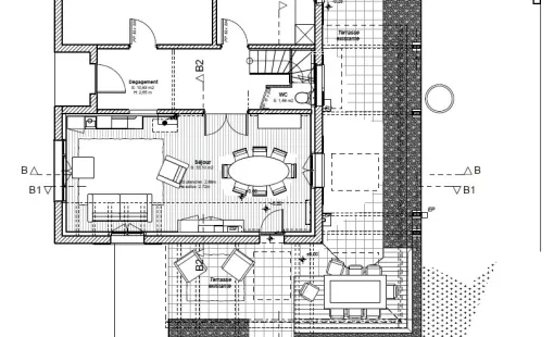
Chez atelier-cs, maître d’œuvre basé à Orthez et ses environs, nous sommes fiers de vous présenter l’une de nos dernières réalisations : la conception 3D de projet de…
Vous recherchez un maître d’œuvre pour projet de construction neuve Pau ? L’atelier-cs, maître d’œuvre à Orthez et ses environs, vient de finaliser un projet…
Vous cherchez un maître d’œuvre pour gérer un chantier de rénovation d'une ancienne grange en habitation à Navarrenx ? L’atelier-cs, maître d’œuvre basé à Orthez et…
Vous cherchez un maître d’œuvre spécialisé pour l’aménagement d’allée extérieure en pavé à Navarrenx ? L’atelier-cs, maître d’œuvre basé à Orthez, a récemment mené à…